借りたい
賃貸物件を探す
買いたい
住宅や土地を探す
お知らせ
すーまるnetからのお知らせ
トピックス
取扱店からのお知らせ
不動産業者様へ
掲載やサイトについて
とかち・帯広の不動産・お部屋探し決定版!
「
借りたい
」「
買いたい
」 なんでもミツカル!
帯広・十勝管内の賃貸・売買情報「すーまるnet」
suumaru-net.com
management by
とかち・帯広の不動産・お部屋探し決定版!
「
借りたい
」「
買いたい
」 なんでもミツカル!
management by
借りたい
賃貸物件を探す
買いたい
住宅や土地を探す
お知らせ
すーまるnetからのお知らせ
トピックス
取扱店からのお知らせ
不動産業者様へ
掲載やサイトについて
参加取扱店|一覧をみる
|借りたい|
|エリアから探す|
|地図から探す|
|学校から探す|
|新着物件一覧|
|買いたい|
|マンション|
|一戸建|
|土地・収益物件|
|新着物件一覧|
◉
マイリストをみる
◉
すーまるnetについて
◉
物件の掲載について
◉
すーまるnetへのお問合せ
◉
ご利用規約
|買いたい|
物件詳細
マイリストに追加
印刷
西18南1_新築住宅
2,669
万
円
新着
新築
所在地
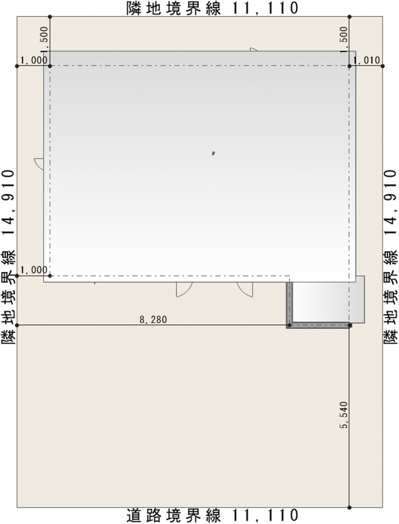
帯広市西十八条南1丁目14-111
築年
2026年3月
種別/階建
戸建て/地上0階建
面積
建物/115.92㎡ 土地/165.00㎡
交通
JR根室本線(新得~釧路) 柏林台駅 徒歩7分
JR根室本線(新得~釧路) 西帯広駅 徒歩37分
取扱・お問合せ
ピタットハウス帯広中央店
0800034 帯広市西4条北1丁目12-3
Tel.0155-26-1600
店舗詳細
ホームページ
メールでこの物件に問合せ
間取り
4LDK
構造
木造
学校区
啓西小学校/西陵中学校
駐車場
有り/0円/月額(駐車可能台数0台)
用途/地目
第一種低層住居専用地域/宅地
引渡
相談
仲介手数料
946,770円
現況
建築中
建ぺい/容積
建ぺい率50% 容積80%
接道状況
南幅6.00mの公道に11.11m接道
取引態様
その他
コメント
啓西小学校エリアに新築住宅の登場です!
完成は2026年3月予定
お問い合わせお待ちしております!
備考
-
設備等
整形地
閑静な住宅街
照明器具付
床下収納
シューズボックス
全室収納あり
温水洗浄トイレ
浴室乾燥機
浴室暖房
浴室1坪以上
IHクッキングヒーター
システムキッチン
浄水器
給湯(灯油)
灯油暖房
24時間換気システム
熱交換器
灯油ボイラー
モニタ付インターホン
上水道
下水道
メールでこの物件に問合せ
management by
Tel.0155-23-2323
Fax.0155-24-9190
〒080-8688 北海道帯広市東1条南8丁目2番地
年間約
50
回の広告掲載で、ネットと新聞のダブル効果!「すーまるnet」は参加店を随時募集中です!
すーまるnetについて
物件の掲載について
すーまるnetへのお問合せ
借りたい
| エリアから
| 地図から
| 学校から
| 新着物件一覧
買いたい
| マンション
| 一戸建
| 土地・収益物件
| 新着物件一覧
web特集
トピックス
不動産業者様へ
掲載店一覧
すーまるnetについて
物件掲載・広告掲載について
すーまるnetへのお問合せ
ご利用規約
© Tokachi Mainichi Newspaper Inc.