借りたい
賃貸物件を探す
買いたい
住宅や土地を探す
お知らせ
すーまるnetからのお知らせ
トピックス
取扱店からのお知らせ
不動産業者様へ
掲載やサイトについて
とかち・帯広の不動産・お部屋探し決定版!
「
借りたい
」「
買いたい
」 なんでもミツカル!
帯広・十勝管内の賃貸・売買情報「すーまるnet」
suumaru-net.com
management by
とかち・帯広の不動産・お部屋探し決定版!
「
借りたい
」「
買いたい
」 なんでもミツカル!
management by
借りたい
賃貸物件を探す
買いたい
住宅や土地を探す
お知らせ
すーまるnetからのお知らせ
トピックス
取扱店からのお知らせ
不動産業者様へ
掲載やサイトについて
参加取扱店|一覧をみる
|借りたい|
|エリアから探す|
|地図から探す|
|学校から探す|
|新着物件一覧|
|買いたい|
|マンション|
|一戸建|
|土地・収益物件|
|新着物件一覧|
◉
マイリストをみる
◉
すーまるnetについて
◉
物件の掲載について
◉
すーまるnetへのお問合せ
◉
ご利用規約
|買いたい|
物件詳細
マイリストに追加
印刷
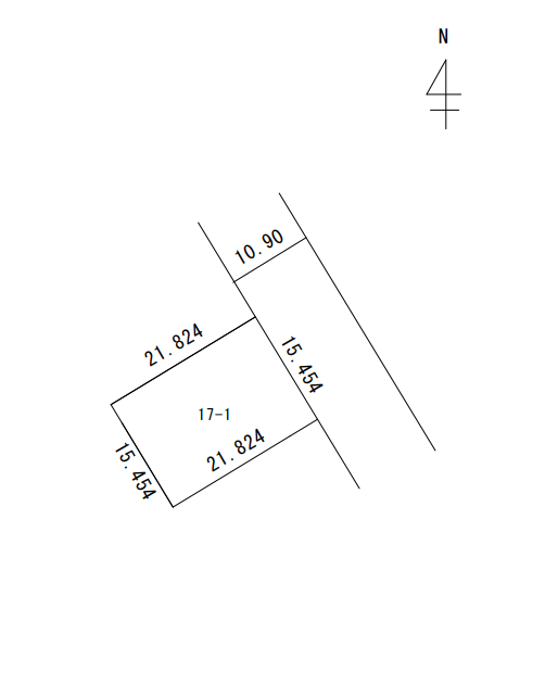
清水町本通西四丁目 売土地
100
万
円
所在地
上川郡清水町本通西四丁目17番1
種別/階建
土地
面積
土地/337.00㎡
交通
JR根室本線(新得~釧路) 十勝清水駅 徒歩8分
取扱・お問合せ
合同会社HARIMA
0892152 北海道広尾郡大樹町西本通73番地7(播間総合法務事務所内)
Tel.01558-8-7080
店舗詳細
ホームページ
メールでこの物件に問合せ
学校区
清水小学校 1.1km/清水中学校 2km
用途/地目
第二種中高層住居専用地域/宅地
引渡
相談
仲介手数料
330,000円
建築条件
なし
現況
更地
建ぺい/容積
建ぺい率60% 容積200%
接道状況
東幅10.90mの公道に15.45m接道
取引態様
一般
コメント
十勝清水駅まで徒歩8分の利便性の良い土地です!
備考
全面道路上水道管なし、本管より引込可
設備等
-
メールでこの物件に問合せ
management by
Tel.0155-23-2323
Fax.0155-24-9190
〒080-8688 北海道帯広市東1条南8丁目2番地
年間約
50
回の広告掲載で、ネットと新聞のダブル効果!「すーまるnet」は参加店を随時募集中です!
すーまるnetについて
物件の掲載について
すーまるnetへのお問合せ
借りたい
| エリアから
| 地図から
| 学校から
| 新着物件一覧
買いたい
| マンション
| 一戸建
| 土地・収益物件
| 新着物件一覧
web特集
トピックス
不動産業者様へ
掲載店一覧
すーまるnetについて
物件掲載・広告掲載について
すーまるnetへのお問合せ
ご利用規約
© Tokachi Mainichi Newspaper Inc.