借りたい
賃貸物件を探す
買いたい
住宅や土地を探す
お知らせ
すーまるnetからのお知らせ
トピックス
取扱店からのお知らせ
不動産業者様へ
掲載やサイトについて
とかち・帯広の不動産・お部屋探し決定版!
「
借りたい
」「
買いたい
」 なんでもミツカル!
帯広・十勝管内の賃貸・売買情報「すーまるnet」
suumaru-net.com
management by
とかち・帯広の不動産・お部屋探し決定版!
「
借りたい
」「
買いたい
」 なんでもミツカル!
management by
借りたい
賃貸物件を探す
買いたい
住宅や土地を探す
お知らせ
すーまるnetからのお知らせ
トピックス
取扱店からのお知らせ
不動産業者様へ
掲載やサイトについて
参加取扱店|一覧をみる
|借りたい|
|エリアから探す|
|地図から探す|
|学校から探す|
|新着物件一覧|
|買いたい|
|マンション|
|一戸建|
|土地・収益物件|
|新着物件一覧|
◉
マイリストをみる
◉
すーまるnetについて
◉
物件の掲載について
◉
すーまるnetへのお問合せ
◉
ご利用規約
|買いたい|
物件詳細
マイリストに追加
印刷
音更町柳町北区*売地*仲介 都市計画法34条区域指定により住宅建築可
850
万
円
所在地
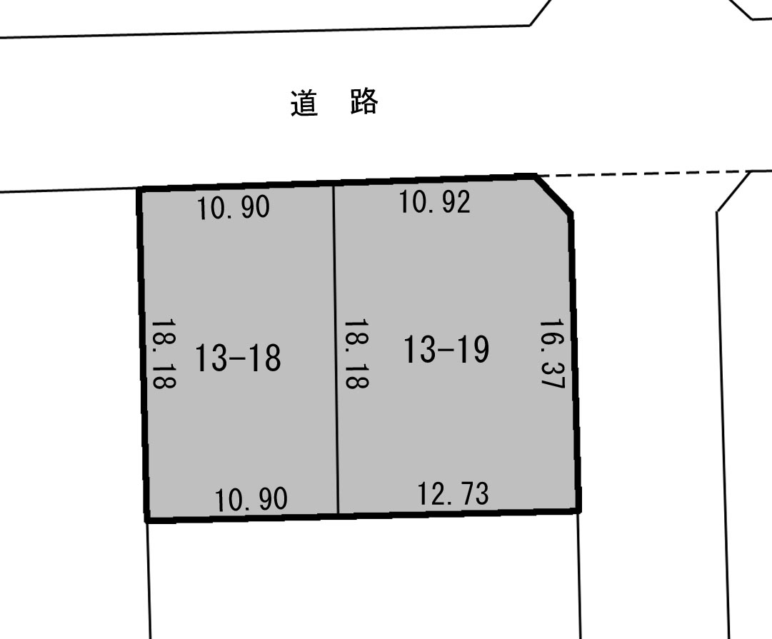
河東郡音更町柳町北区13番地18、19
種別/階建
土地
面積
土地/427.95㎡
交通
十勝バス 「よつば乳業東口」 バス停徒歩4分
コミバス 「柳町9線」 バス停徒歩4分
十勝バス・拓殖バス 「よつば乳業前」 バス停徒歩8分
取扱・お問合せ
星屋株式会社
0800015 北海道帯広市西5条南17丁目11
Tel.0155-22-8800
店舗詳細
ホームページ
メールでこの物件に問合せ
学校区
柳町小学校 0.86km/共栄中学校 1.89km
用途/地目
第二種低層住居専用地域/宅地
引渡
相談
仲介手数料
346,500円
建築条件
なし
現況
既存建築物あり(解体後更地渡し)
建ぺい/容積
建ぺい率50% 容積80%
接道状況
北幅8.18mの公道に23.63m接道
取引態様
専任
コメント
・2筆一括売却を条件とします
・ゆとりの敷地で、田園風景の広がる閑静な環境!
・家庭菜園も可能なので、スローライフを愉しみたい方にお奨めです
・近隣にショッピングモールが形成されており、買い物にも便利!
・病院・医療施設が集中した地域なので、お年寄りの方にも住みよい環境
・敷地が広いのでアパート・マンション等収益物件をご計画の方にもお奨めです
・基本原則ー建物・立木等解体撤去のうえ引渡し
・3番19の土地は、条件次第では、開発行為を行わなくても建て替え申請により住宅建築可能
・東側隣地は音更町の町有地ですが、町道ではありません 音更町による除雪は行います
備考
市街化調整区域ですが、都市計画法第34条第11号により建物建築可(開発行為の許可が必要)
第二種低層住居専用地域相当 建ぺい率50% 容積率80%
設備等
整形地
閑静な住宅街
LPガス
上水道
下水道
電気
メールでこの物件に問合せ
management by
Tel.0155-23-2323
Fax.0155-24-9190
〒080-8688 北海道帯広市東1条南8丁目2番地
年間約
50
回の広告掲載で、ネットと新聞のダブル効果!「すーまるnet」は参加店を随時募集中です!
すーまるnetについて
物件の掲載について
すーまるnetへのお問合せ
借りたい
| エリアから
| 地図から
| 学校から
| 新着物件一覧
買いたい
| マンション
| 一戸建
| 土地・収益物件
| 新着物件一覧
web特集
トピックス
不動産業者様へ
掲載店一覧
すーまるnetについて
物件掲載・広告掲載について
すーまるnetへのお問合せ
ご利用規約
© Tokachi Mainichi Newspaper Inc.