借りたい
賃貸物件を探す
買いたい
住宅や土地を探す
お知らせ
すーまるnetからのお知らせ
トピックス
取扱店からのお知らせ
不動産業者様へ
掲載やサイトについて
とかち・帯広の不動産・お部屋探し決定版!
「
借りたい
」「
買いたい
」 なんでもミツカル!
帯広・十勝管内の賃貸・売買情報「すーまるnet」
suumaru-net.com
management by
とかち・帯広の不動産・お部屋探し決定版!
「
借りたい
」「
買いたい
」 なんでもミツカル!
management by
借りたい
賃貸物件を探す
買いたい
住宅や土地を探す
お知らせ
すーまるnetからのお知らせ
トピックス
取扱店からのお知らせ
不動産業者様へ
掲載やサイトについて
参加取扱店|一覧をみる
|借りたい|
|エリアから探す|
|地図から探す|
|学校から探す|
|新着物件一覧|
|買いたい|
|マンション|
|一戸建|
|土地・収益物件|
|新着物件一覧|
◉
マイリストをみる
◉
すーまるnetについて
◉
物件の掲載について
◉
すーまるnetへのお問合せ
◉
ご利用規約
|買いたい|
物件詳細
マイリストに追加
印刷
音更町木野|分譲住宅|家族のぬくもりを感じる2階建ての家
3,299
万
8,860
円
商談中
所在地
河東郡音更町木野西通12丁目6番地58
築年
2024年6月
種別/階建
戸建て/地上2階建
面積
建物/92.74㎡ 土地/216.57㎡
交通
JR根室本線(新得~釧路) 帯広駅 徒歩58分
取扱・お問合せ
タグホーム(株)髙橋組住宅事業部
0800111 北海道河東郡音更町木野大通東13丁目1-1
Tel.0155-31-4594
店舗詳細
ホームページ
メールでこの物件に問合せ
間取り
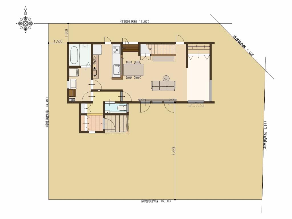
4LDK(LDK17.2帖/洋室4.0帖/洋室5.2帖/洋室4.5帖/洋室4.5帖)
構造
木造
学校区
下音更小学校 0.12km/下音更中学校 1.0km
駐車場
有り/0円/月額(駐車可能台数2台)
用途/地目
第二種中高層住居専用地域/宅地
引渡
相談
仲介手数料
-
現況
建築中
建ぺい/容積
建ぺい率60% 容積200%
接道状況
-
取引態様
媒介
コメント
販売価格:32,998,860円(土地・建物・消費税込み)
建物面積:28.05坪(1階:16.78坪 2階:11.27坪)
小学校や公園が近く、子育て世代には住み良い環境。
病院やスーパー、帯広市内にアクセス良好な地域です。
《近隣施設》
帯広徳洲会病院 750m
ダイイチ音更店 500m
TSUTAYA木野店 300m
ケーズデンキ帯広音更 600m
《文教》
下音更小学校 120m
下音更中学校 1000m
木野北保育園 150m
売主:株式会社タグ住環境研究所
備考
-
設備等
閑静な住宅街
耐震
日当り良好
照明器具付
ウォークインクローゼット
全室収納あり
温水洗浄トイレ
食器洗乾燥機
給湯(ガス)
エアコン付
24時間換気システム
エコジョーズ
モニタ付インターホン
上水道
下水道
メールでこの物件に問合せ
management by
Tel.0155-23-2323
Fax.0155-24-9190
〒080-8688 北海道帯広市東1条南8丁目2番地
年間約
50
回の広告掲載で、ネットと新聞のダブル効果!「すーまるnet」は参加店を随時募集中です!
すーまるnetについて
物件の掲載について
すーまるnetへのお問合せ
借りたい
| エリアから
| 地図から
| 学校から
| 新着物件一覧
買いたい
| マンション
| 一戸建
| 土地・収益物件
| 新着物件一覧
web特集
トピックス
不動産業者様へ
掲載店一覧
すーまるnetについて
物件掲載・広告掲載について
すーまるnetへのお問合せ
ご利用規約
© Tokachi Mainichi Newspaper Inc.