借りたい
賃貸物件を探す
買いたい
住宅や土地を探す
お知らせ
すーまるnetからのお知らせ
トピックス
取扱店からのお知らせ
不動産業者様へ
掲載やサイトについて
とかち・帯広の不動産・お部屋探し決定版!
「
借りたい
」「
買いたい
」 なんでもミツカル!
帯広・十勝管内の賃貸・売買情報「すーまるnet」
suumaru-net.com
management by
とかち・帯広の不動産・お部屋探し決定版!
「
借りたい
」「
買いたい
」 なんでもミツカル!
management by
借りたい
賃貸物件を探す
買いたい
住宅や土地を探す
お知らせ
すーまるnetからのお知らせ
トピックス
取扱店からのお知らせ
不動産業者様へ
掲載やサイトについて
参加取扱店|一覧をみる
|借りたい|
|エリアから探す|
|地図から探す|
|学校から探す|
|新着物件一覧|
|買いたい|
|マンション|
|一戸建|
|土地・収益物件|
|新着物件一覧|
◉
マイリストをみる
◉
すーまるnetについて
◉
物件の掲載について
◉
すーまるnetへのお問合せ
◉
ご利用規約
|買いたい|
物件詳細
マイリストに追加
印刷
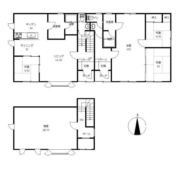
帯広市西13条南39丁目中古住宅※オーナーチェンジ物件
1,500
万
円
所在地
帯広市西十三条南39丁目290番地22、290番地23
築年
1993年3月
種別/階建
収益/地上2階建
所在階
地上2階
面積
専有/154.83㎡ 建物/154.83㎡ 土地/277.68㎡
交通
十勝バス 「十勝リハビリテーションセンター前」 バス停徒歩3分
取扱・お問合せ
(株)フォノ
0800802 帯広市東2条南7丁目17番地7
Tel.0155-67-8102
店舗詳細
ホームページ
メールでこの物件に問合せ
間取り
-
構造
木造
学校区
稲田小学校/南町中学校
駐車場
有り(駐車可能台数4台)
用途/地目
第一種低層住居専用地域/宅地
引渡
相談
仲介手数料
561,000円
利回り
9.20%
現況
賃貸中
専有面積
154.83㎡
建ぺい/容積
建ぺい率50% 容積80%
接道状況
南幅8.00mの公道に21.81m接道
取引態様
媒介
コメント
稲田地区のオーナーチェンジ物件です。2階建棟と平屋建棟は壁を接していますが、室内は完全分離しています。間取りは現況を優先いたします。
備考
*オーナーチェンジ物件
設備等
上水道
下水道
メールでこの物件に問合せ
management by
Tel.0155-23-2323
Fax.0155-24-9190
〒080-8688 北海道帯広市東1条南8丁目2番地
年間約
50
回の広告掲載で、ネットと新聞のダブル効果!「すーまるnet」は参加店を随時募集中です!
すーまるnetについて
物件の掲載について
すーまるnetへのお問合せ
借りたい
| エリアから
| 地図から
| 学校から
| 新着物件一覧
買いたい
| マンション
| 一戸建
| 土地・収益物件
| 新着物件一覧
web特集
トピックス
不動産業者様へ
掲載店一覧
すーまるnetについて
物件掲載・広告掲載について
すーまるnetへのお問合せ
ご利用規約
© Tokachi Mainichi Newspaper Inc.