借りたい
賃貸物件を探す
買いたい
住宅や土地を探す
お知らせ
すーまるnetからのお知らせ
トピックス
取扱店からのお知らせ
不動産業者様へ
掲載やサイトについて
とかち・帯広の不動産・お部屋探し決定版!
「
借りたい
」「
買いたい
」 なんでもミツカル!
帯広・十勝管内の賃貸・売買情報「すーまるnet」
suumaru-net.com
management by
とかち・帯広の不動産・お部屋探し決定版!
「
借りたい
」「
買いたい
」 なんでもミツカル!
management by
借りたい
賃貸物件を探す
買いたい
住宅や土地を探す
お知らせ
すーまるnetからのお知らせ
トピックス
取扱店からのお知らせ
不動産業者様へ
掲載やサイトについて
参加取扱店|一覧をみる
|借りたい|
|エリアから探す|
|地図から探す|
|学校から探す|
|新着物件一覧|
|買いたい|
|マンション|
|一戸建|
|土地・収益物件|
|新着物件一覧|
◉
マイリストをみる
◉
すーまるnetについて
◉
物件の掲載について
◉
すーまるnetへのお問合せ
◉
ご利用規約
|買いたい|
物件詳細
マイリストに追加
印刷
\リノベに最適/中古住宅600万
600
万
円
所在地
河東郡音更町駒場本通5丁目28
築年
1980年5月
種別/階建
戸建て/地上2階建
面積
建物/89.10㎡ 土地/365.73㎡
交通
拓殖バス 「駒場郵便局前」 バス停徒歩3分
取扱・お問合せ
(株)総合設計
0800014 北海道帯広市西四条南37丁目1
Tel.0155-49-3030
店舗詳細
ホームページ
メールでこの物件に問合せ
間取り
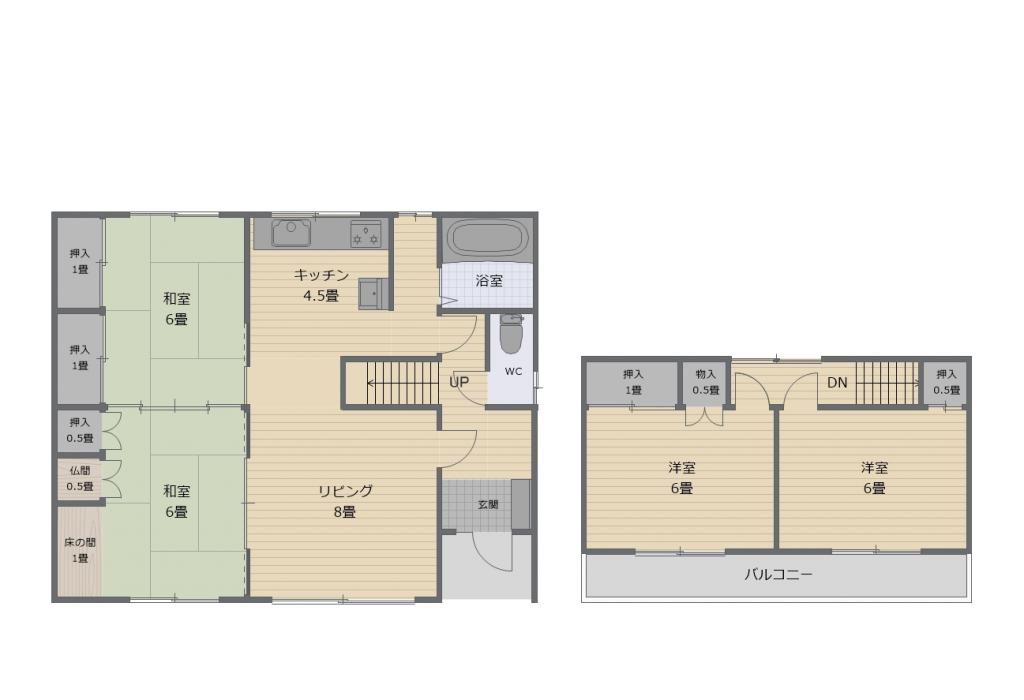
4LK(L8.0帖/K8.0帖/和室6.0帖/和室6.0帖/洋室6.0帖/洋室6.0帖)
構造
木造
学校区
駒場小学校 0.5km/駒場中学校 1km
駐車場
有り
用途/地目
指定なし/宅地
引渡
即時
仲介手数料
330,000円
現況
空き
建ぺい/容積
指定なし 建ぺい率0% 容積0%
接道状況
-
取引態様
専任
コメント
※分筆前は750万で販売しております。
格安物件でフルリノベにオススメ!
キッチン。UB・洗面・WCはリフォーム済みなので
そのまま暮らすこともOK!
エアコン・ストーブ付き
家横には物置件ガレージもついてます。
備考
-
設備等
角地
整形地
閑静な住宅街
車庫あり
日当り良好
温水洗浄トイレ
シャンプードレッサー
追い炊き風呂
システムキッチン
給湯(灯油)
エアコン付
灯油暖房
灯油ボイラー
田舎暮らし向き
上水道
下水道
メールでこの物件に問合せ
management by
Tel.0155-23-2323
Fax.0155-24-9190
〒080-8688 北海道帯広市東1条南8丁目2番地
年間約
50
回の広告掲載で、ネットと新聞のダブル効果!「すーまるnet」は参加店を随時募集中です!
すーまるnetについて
物件の掲載について
すーまるnetへのお問合せ
借りたい
| エリアから
| 地図から
| 学校から
| 新着物件一覧
買いたい
| マンション
| 一戸建
| 土地・収益物件
| 新着物件一覧
web特集
トピックス
不動産業者様へ
掲載店一覧
すーまるnetについて
物件掲載・広告掲載について
すーまるnetへのお問合せ
ご利用規約
© Tokachi Mainichi Newspaper Inc.