借りたい
賃貸物件を探す
買いたい
住宅や土地を探す
おまかせ物件探し
希望の物件をリクエスト
お知らせ
すーまるnetからのお知らせ
トピックス
取扱店からのお知らせ
不動産業者様へ
掲載やサイトについて
とかち・帯広の不動産・お部屋探し決定版!
「
借りたい
」「
買いたい
」 なんでもミツカル!
帯広・十勝管内の賃貸・売買情報「すーまるnet」
suumaru-net.com
management by
とかち・帯広の不動産・お部屋探し決定版!
「
借りたい
」「
買いたい
」 なんでもミツカル!
management by
借りたい
賃貸物件を探す
買いたい
住宅や土地を探す
おまかせ物件探し
希望の物件をリクエスト
お知らせ
すーまるnetからのお知らせ
トピックス
取扱店からのお知らせ
不動産業者様へ
掲載やサイトについて
参加取扱店|一覧をみる
|借りたい|
|エリアから探す|
|地図から探す|
|学校から探す|
|新着物件一覧|
|買いたい|
|マンション|
|一戸建|
|土地・収益物件|
|新着物件一覧|
◉
マイリストをみる
◉
すーまるnetについて
◉
物件の掲載について
◉
すーまるnetへのお問合せ
◉
ご利用規約
|買いたい|
物件詳細
マイリストに追加
印刷
The TOWER OBIHIRO(ザ・タワー帯広) 609号室
4,500
万
円
所在地
帯広市西四条南9丁目7番地
築年
2020年10月
種別/階建
マンション/地上19階建
所在階
地上6階
面積
専有/80.26㎡
交通
JR根室本線(新得~釧路) 帯広駅 徒歩9分
JR根室本線(新得~釧路) 柏林台駅 徒歩45分
管理・共益費
13,070円
修繕積立金
-
取扱・お問合せ
株式会社Bit
0802473 帯広市西5条南22丁目1番地5
Tel.0155-67-7600
店舗詳細
メールでこの物件に問合せ
間取り
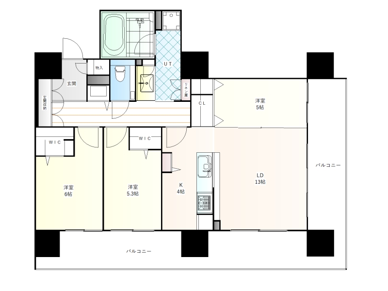
3LDK(LD13.0帖/K4.0帖/洋室5.0帖/洋室5.3帖/洋室6.0帖)
構造
鉄筋コンクリート造
学校区
帯広小学校/翔陽中学校
駐車場
有り
引渡
即時
仲介手数料
1,551,000円
現況
賃貸中
専有面積
80.26㎡
総戸数
147戸
取引態様
一般
コメント
・帯広市中心部の分譲マンション♪
・都市ガス「エコジョーズ」仕様、節水トイレで光熱費削減☆
・追炊付きUB、TVモニター付きオートロック、浴室乾燥機、食洗器、ディスポーザー付きです!
・ペット飼育可能(規約による制限あり)☆
・コンビニや飲食店などの商業施設も徒歩10分圏内に複数あり!
・市役所、銀行、郵便局なども徒歩圏内で暮らし便利☆
・2面バルコニーが開放感をあたえてくれます☆
・駅まで好アクセス!最寄り駅まで徒歩約10分☆
・駐車可能台数は都度お問い合わせ下さい。複数台駐車可能です♪
駐車場代金(月額・税別):隣接平置 14,000円・立体駐車場 15,000円・立体駐車場屋上 12,000円
※図面と現況に相違がある場合は現況を優先とします。
備考
-
設備等
エレベーター
24時間ゴミ出し可
タワーマンション
角部屋
フローリング
納戸・トランクルーム
ウォークインクローゼット
シューズボックス
全室収納あり
温水洗浄トイレ
シャンプードレッサー
浴室乾燥機
追い炊き風呂
システムキッチン
食器洗乾燥機
ディスポーザー
給湯(ガス)
都市ガス
エアコン付
床暖房
24時間換気システム
エコジョーズ
オートロック
モニタ付インターホン
防犯カメラ
宅配BOX
メールでこの物件に問合せ
management by
Tel.0155-23-2323
Fax.0155-24-9190
〒080-8688 北海道帯広市東1条南8丁目2番地
年間約
50
回の広告掲載で、ネットと新聞のダブル効果!「すーまるnet」は参加店を随時募集中です!
すーまるnetについて
物件の掲載について
すーまるnetへのお問合せ
借りたい
| エリアから
| 地図から
| 学校から
| 新着物件一覧
買いたい
| マンション
| 一戸建
| 土地・収益物件
| 新着物件一覧
おまかせ物件探し
web特集
トピックス
不動産業者様へ
掲載店一覧
すーまるnetについて
物件掲載・広告掲載について
すーまるnetへのお問合せ
ご利用規約
© Tokachi Mainichi Newspaper Inc.
マイリスト
履歴
閲覧履歴
検索履歴