借りたい
賃貸物件を探す
買いたい
住宅や土地を探す
おまかせ物件探し
希望の物件をリクエスト
お知らせ
すーまるnetからのお知らせ
トピックス
取扱店からのお知らせ
不動産業者様へ
掲載やサイトについて
とかち・帯広の不動産・お部屋探し決定版!
「
借りたい
」「
買いたい
」 なんでもミツカル!
帯広・十勝管内の賃貸・売買情報「すーまるnet」
suumaru-net.com
management by
とかち・帯広の不動産・お部屋探し決定版!
「
借りたい
」「
買いたい
」 なんでもミツカル!
management by
借りたい
賃貸物件を探す
買いたい
住宅や土地を探す
おまかせ物件探し
希望の物件をリクエスト
お知らせ
すーまるnetからのお知らせ
トピックス
取扱店からのお知らせ
不動産業者様へ
掲載やサイトについて
参加取扱店|一覧をみる
|借りたい|
|エリアから探す|
|地図から探す|
|学校から探す|
|新着物件一覧|
|買いたい|
|マンション|
|一戸建|
|土地・収益物件|
|新着物件一覧|
◉
マイリストをみる
◉
すーまるnetについて
◉
物件の掲載について
◉
すーまるnetへのお問合せ
◉
ご利用規約
|買いたい|
物件詳細
マイリストに追加
印刷
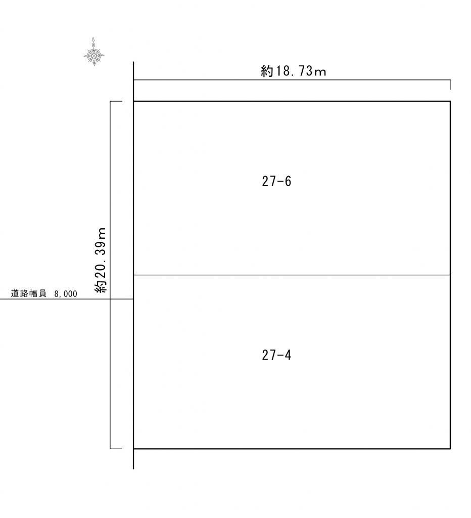
【売土地】音更町木野西通19丁目27番4・6
550
万
円
商談中
所在地
音更町木野西通19丁目27番4・6
種別/階建
土地
面積
土地/382.00㎡
交通
JR根室本線(新得~釧路) 柏林台駅 徒歩77分
取扱・お問合せ
タグホーム(株)髙橋組住宅事業部
0800111 北海道河東郡音更町木野大通東13丁目1-1
Tel.0155-31-4594
店舗詳細
ホームページ
メールでこの物件に問合せ
学校区
柳町小学校 1.8km/共栄中学校 1.7km
用途/地目
原野
引渡
相談
仲介手数料
330,000円
建築条件
なし
現況
現状渡し
建ぺい/容積
-
接道状況
西幅8.00mの公道に20.39m接道
取引態様
専任
コメント
高台に位置し、115坪ほどの広い土地で車の通りも少なく静かにのんびりと暮らすことができる住環境です。
木野大通が近く大型スーパーや病院などにアクセス良好な地域です。
・建築条件無し
・2筆一括売却
・開進地区に該当し建築する際は開発申請が必要
・上下水道完備
備考
市街化調整区域ですが、都市計画法第34条第11号指定区域(開進地区)に該当し、第二種低層住居専用地域相当の建物を建築することができます。その際は開発申請が必要となります。建ぺい率50% 容積率80%
設備等
高台に立地
閑静な住宅街
田舎暮らし向き
上水道
下水道
電気
メールでこの物件に問合せ
management by
Tel.0155-23-2323
Fax.0155-24-9190
〒080-8688 北海道帯広市東1条南8丁目2番地
年間約
50
回の広告掲載で、ネットと新聞のダブル効果!「すーまるnet」は参加店を随時募集中です!
すーまるnetについて
物件の掲載について
すーまるnetへのお問合せ
借りたい
| エリアから
| 地図から
| 学校から
| 新着物件一覧
買いたい
| マンション
| 一戸建
| 土地・収益物件
| 新着物件一覧
おまかせ物件探し
web特集
トピックス
不動産業者様へ
掲載店一覧
すーまるnetについて
物件掲載・広告掲載について
すーまるnetへのお問合せ
ご利用規約
© Tokachi Mainichi Newspaper Inc.
マイリスト
履歴
閲覧履歴
検索履歴