借りたい
賃貸物件を探す
買いたい
住宅や土地を探す
おまかせ物件探し
希望の物件をリクエスト
お知らせ
すーまるnetからのお知らせ
トピックス
取扱店からのお知らせ
不動産業者様へ
掲載やサイトについて
とかち・帯広の不動産・お部屋探し決定版!
「
借りたい
」「
買いたい
」 なんでもミツカル!
帯広・十勝管内の賃貸・売買情報「すーまるnet」
suumaru-net.com
management by
とかち・帯広の不動産・お部屋探し決定版!
「
借りたい
」「
買いたい
」 なんでもミツカル!
management by
借りたい
賃貸物件を探す
買いたい
住宅や土地を探す
おまかせ物件探し
希望の物件をリクエスト
お知らせ
すーまるnetからのお知らせ
トピックス
取扱店からのお知らせ
不動産業者様へ
掲載やサイトについて
参加取扱店|一覧をみる
|借りたい|
|エリアから探す|
|地図から探す|
|学校から探す|
|新着物件一覧|
|買いたい|
|マンション|
|一戸建|
|土地・収益物件|
|新着物件一覧|
◉
マイリストをみる
◉
すーまるnetについて
◉
物件の掲載について
◉
すーまるnetへのお問合せ
◉
ご利用規約
|買いたい|
物件詳細
マイリストに追加
印刷
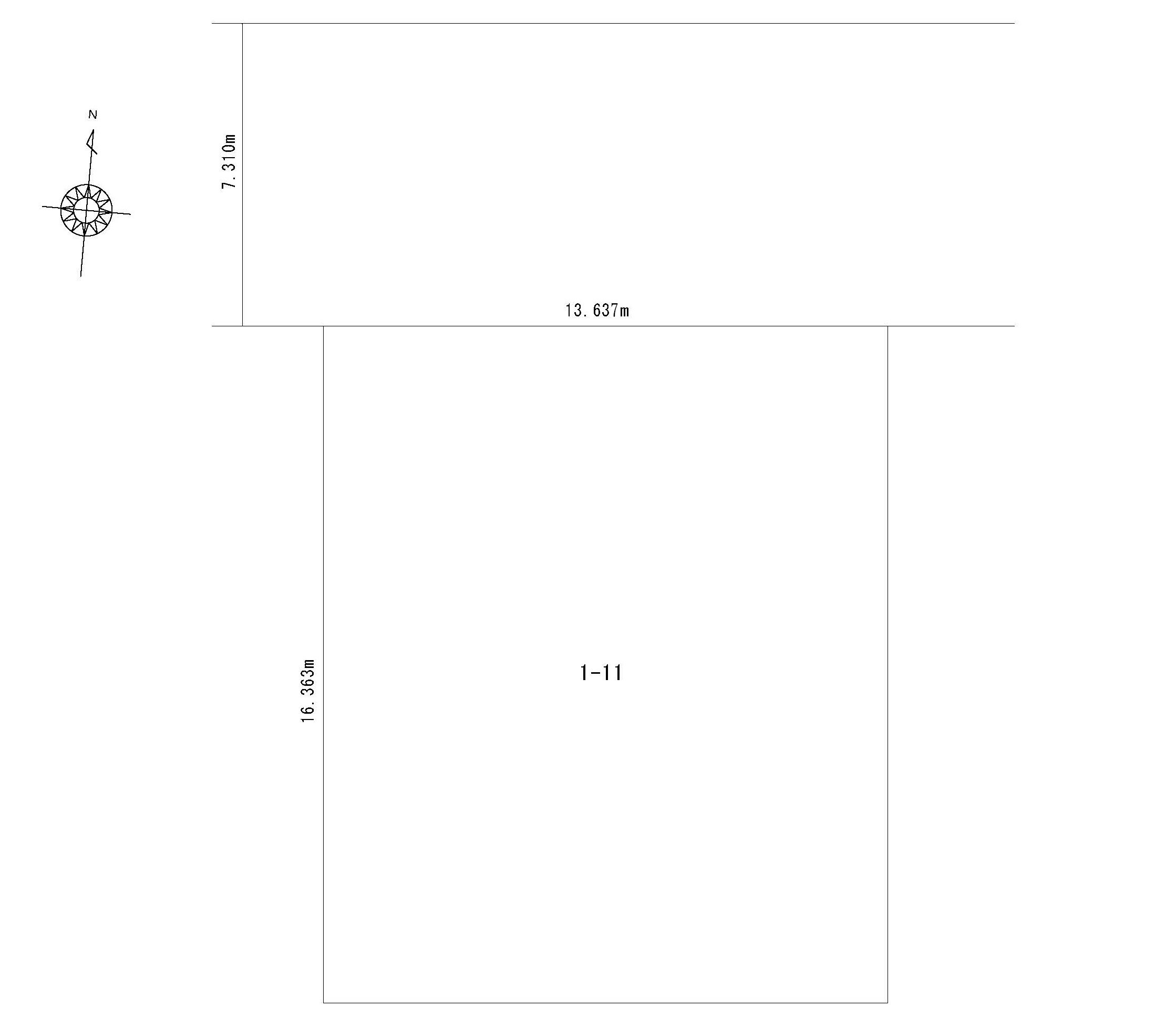
帯広市西13南17|緑丘小学校徒歩3分|67.4坪の売土地
980
万
円
所在地
帯広市西13条南17丁目1番11
種別/階建
土地
面積
土地/223.14㎡
交通
JR根室本線(新得~釧路) 帯広駅 徒歩20分
取扱・お問合せ
タグホーム(株)髙橋組住宅事業部
0800111 北海道河東郡音更町木野大通東13丁目1-1
Tel.0155-31-4594
店舗詳細
ホームページ
メールでこの物件に問合せ
学校区
緑丘小学校 0.2km/帯広第五中学校 1km
用途/地目
第二種住居地域/宅地
引渡
相談
仲介手数料
-
建築条件
あり
現況
更地
建ぺい/容積
建ぺい率60% 容積200%
接道状況
北幅7.31mの公道に13.64m接道
取引態様
売主
コメント
広さ223.14㎡(67.4坪)
小中学校に登校しやすいエリアで緑ヶ丘公園や動物園も近く子育て世代に嬉しい地域です。
また、帯広市街地や大型商業施設へアクセス良好で閑静な住宅街です。
建築条件あり
仲介手数料なし
南側から一部、工作物の越境があります。
緑丘小学校(170m)・緑ヶ丘公園(300m)がすぐそば!
備考
都市ガス使用条件となります。
設備等
閑静な住宅街
都市ガス
上水道
下水道
電気
メールでこの物件に問合せ
management by
Tel.0155-23-2323
Fax.0155-24-9190
〒080-8688 北海道帯広市東1条南8丁目2番地
年間約
50
回の広告掲載で、ネットと新聞のダブル効果!「すーまるnet」は参加店を随時募集中です!
すーまるnetについて
物件の掲載について
すーまるnetへのお問合せ
借りたい
| エリアから
| 地図から
| 学校から
| 新着物件一覧
買いたい
| マンション
| 一戸建
| 土地・収益物件
| 新着物件一覧
おまかせ物件探し
web特集
トピックス
不動産業者様へ
掲載店一覧
すーまるnetについて
物件掲載・広告掲載について
すーまるnetへのお問合せ
ご利用規約
© Tokachi Mainichi Newspaper Inc.
マイリスト
履歴
閲覧履歴
検索履歴