借りたい
賃貸物件を探す
買いたい
住宅や土地を探す
おまかせ物件探し
希望の物件をリクエスト
お知らせ
すーまるnetからのお知らせ
トピックス
取扱店からのお知らせ
不動産業者様へ
掲載やサイトについて
とかち・帯広の不動産・お部屋探し決定版!
「
借りたい
」「
買いたい
」 なんでもミツカル!
帯広・十勝管内の賃貸・売買情報「すーまるnet」
suumaru-net.com
management by
とかち・帯広の不動産・お部屋探し決定版!
「
借りたい
」「
買いたい
」 なんでもミツカル!
management by
借りたい
賃貸物件を探す
買いたい
住宅や土地を探す
おまかせ物件探し
希望の物件をリクエスト
お知らせ
すーまるnetからのお知らせ
トピックス
取扱店からのお知らせ
不動産業者様へ
掲載やサイトについて
参加取扱店|一覧をみる
|借りたい|
|エリアから探す|
|地図から探す|
|学校から探す|
|新着物件一覧|
|買いたい|
|マンション|
|一戸建|
|土地・収益物件|
|新着物件一覧|
◉
マイリストをみる
◉
すーまるnetについて
◉
物件の掲載について
◉
すーまるnetへのお問合せ
◉
ご利用規約
|買いたい|
物件詳細
マイリストに追加
印刷
※価格改定【東6南21】本格和庭園のある住まい【母屋+離れ付き】
2,800
万
円
所在地
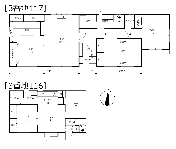
帯広市東6条南21丁目3番地117
築年
1984年10月
種別/階建
戸建て/地上1階建
面積
建物/130.61㎡ 土地/623.25㎡
交通
十勝バス バス0分「光南福祉センター前」 バス停徒歩2分
取扱・お問合せ
(株)フォノ
0800802 帯広市東2条南7丁目17番地7
Tel.0155-67-8102
店舗詳細
ホームページ
メールでこの物件に問合せ
間取り
4LDK(LDK18.7帖/和室6.0帖/和室11.0帖/洋室7.2帖/洋室10.7帖)
構造
木造
学校区
光南小学校 0.19km/翔陽中学校
駐車場
有り/0円/月額(駐車可能台数2台)※青空
用途/地目
第二種中高層住居専用地域/宅地
引渡
相談
仲介手数料
990,000円
現況
空き
建ぺい/容積
建ぺい率60% 容積200%
接道状況
東幅10.90mの公道に25.46m接道
取引態様
専任
コメント
時を重ねるごとに味わいが深まる、和の趣ある邸宅です!
築40年以上ながら、しっかりと手入れされた住まいは「古さ」ではなく「経年優化」を感じさせる佇まいです。
三種の竹垣、飛び石、蹲(つくばい)を配した本格的な和風庭園は、四季折々の表情を楽しめる特別な空間♪
広く取った軒下の縁側に腰掛けて、やわらかな日差しと風を感じながら、穏やかな時間を過ごせます。
室内は和洋折衷の造り。
洋風の赤茶の建具が和室と調和し、落ち着きのある雰囲気を演出。
LDKは南向きで約18帖、全居室に収納を備えた使いやすい間取りです。
さらに180坪以上の広々とした敷地内には、もう一棟の平屋建て(離れ)があります。
ご家族のライフスタイルに合わせた二世帯利用や、賃貸・アトリエとしての活用も可能です。
周辺は静かで落ち着いた住宅地ながら、小学校まで徒歩10分以内と、子育て世帯にも安心の立地です♪
備考
*売買対象土地内訳:
3番116、3番117、3番131、3番151、3番152
*3番116に未登記建物あり
木造平屋建て/昭和54年築/39.50㎡(16.17坪)
設備等
整形地
閑静な住宅街
庭が広い(10坪以上)
日当り良好
全室収納あり
温水洗浄トイレ
給湯(灯油)
都市ガス
灯油暖房
灯油ボイラー
上水道
下水道
メールでこの物件に問合せ
management by
Tel.0155-23-2323
Fax.0155-24-9190
〒080-8688 北海道帯広市東1条南8丁目2番地
年間約
50
回の広告掲載で、ネットと新聞のダブル効果!「すーまるnet」は参加店を随時募集中です!
すーまるnetについて
物件の掲載について
すーまるnetへのお問合せ
借りたい
| エリアから
| 地図から
| 学校から
| 新着物件一覧
買いたい
| マンション
| 一戸建
| 土地・収益物件
| 新着物件一覧
おまかせ物件探し
web特集
トピックス
不動産業者様へ
掲載店一覧
すーまるnetについて
物件掲載・広告掲載について
すーまるnetへのお問合せ
ご利用規約
© Tokachi Mainichi Newspaper Inc.
マイリスト
履歴
閲覧履歴
検索履歴