借りたい
賃貸物件を探す
買いたい
住宅や土地を探す
お知らせ
すーまるnetからのお知らせ
トピックス
取扱店からのお知らせ
不動産業者様へ
掲載やサイトについて
とかち・帯広の不動産・お部屋探し決定版!
「
借りたい
」「
買いたい
」 なんでもミツカル!
帯広・十勝管内の賃貸・売買情報「すーまるnet」
suumaru-net.com
management by
とかち・帯広の不動産・お部屋探し決定版!
「
借りたい
」「
買いたい
」 なんでもミツカル!
management by
借りたい
賃貸物件を探す
買いたい
住宅や土地を探す
お知らせ
すーまるnetからのお知らせ
トピックス
取扱店からのお知らせ
不動産業者様へ
掲載やサイトについて
参加取扱店|一覧をみる
|借りたい|
|エリアから探す|
|地図から探す|
|学校から探す|
|新着物件一覧|
|買いたい|
|マンション|
|一戸建|
|土地・収益物件|
|新着物件一覧|
◉
マイリストをみる
◉
すーまるnetについて
◉
物件の掲載について
◉
すーまるnetへのお問合せ
◉
ご利用規約
|買いたい|
物件詳細
マイリストに追加
印刷
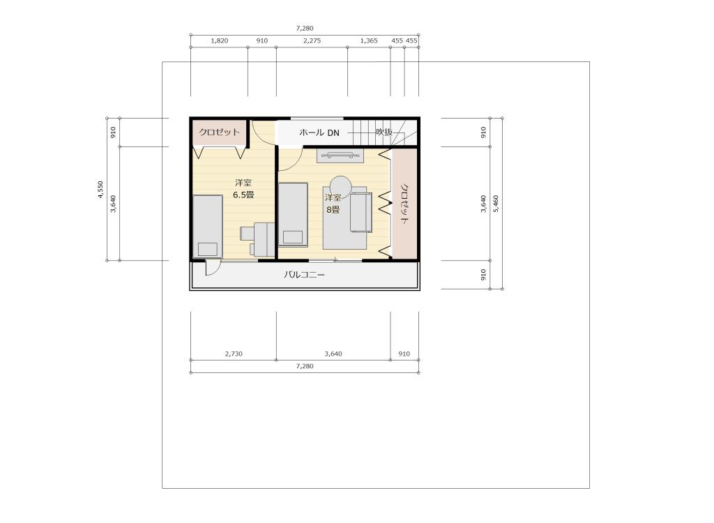
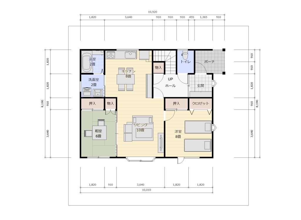
音更町宝来東町北1丁目売家
1,380
万
円
新着
所在地
河東郡音更町宝来東町北1丁目
築年
1998年7月
種別/階建
戸建て/地上2階建
面積
バルコニー/6.48㎡ 建物/109.71㎡ 土地/277.87㎡
交通
JR根室本線(新得~釧路) 帯広駅 徒歩49分
取扱・お問合せ
(株)太平ホーム北海道帯広支店
0800010 北海道帯広市大通南5丁目1番地
Tel.0155-20-7757
店舗詳細
ホームページ
メールでこの物件に問合せ
間取り
4LDK(洋室8.0帖/和室6.0帖/洋室8.0帖/洋室0.0帖)
構造
木造
学校区
木野東小学校 1.5km/緑南中学校 1.2km
駐車場
有り/0円/月額(駐車可能台数0台)
用途/地目
第二種中高層住居専用地域/宅地
引渡
相談
仲介手数料
521,400円
現況
入居中
建ぺい/容積
建ぺい率60% 容積200%
接道状況
東幅16.00mの公道に17.00m接道
取引態様
媒介
コメント
木野エリアは、生活に必要な商業施設が揃ったとても便利な地域です。
大型店から地元のお店まで幅広くあり、毎日の買い物もストレスフリー。
また、すぐ近くに十勝川温泉があるため、休日には気軽に温泉へ行ける贅沢さも魅力です。
自然ゆたかで近くに公園もあり、家族みんなに心地よい暮らしが広がっています。
備考
-
設備等
整形地
閑静な住宅街
車庫あり
庭が広い(10坪以上)
日当り良好
照明器具付
フローリング
出窓
二重サッシ
シャンプードレッサー
浴室1坪以上
システムキッチン
給湯(灯油)
LPガス
灯油暖房
灯油ボイラー
田舎暮らし向き
上水道
下水道
メールでこの物件に問合せ
management by
Tel.0155-23-2323
Fax.0155-24-9190
〒080-8688 北海道帯広市東1条南8丁目2番地
年間約
50
回の広告掲載で、ネットと新聞のダブル効果!「すーまるnet」は参加店を随時募集中です!
すーまるnetについて
物件の掲載について
すーまるnetへのお問合せ
借りたい
| エリアから
| 地図から
| 学校から
| 新着物件一覧
買いたい
| マンション
| 一戸建
| 土地・収益物件
| 新着物件一覧
web特集
トピックス
不動産業者様へ
掲載店一覧
すーまるnetについて
物件掲載・広告掲載について
すーまるnetへのお問合せ
ご利用規約
© Tokachi Mainichi Newspaper Inc.