借りたい
賃貸物件を探す
買いたい
住宅や土地を探す
おまかせ物件探し
希望の物件をリクエスト
お知らせ
すーまるnetからのお知らせ
トピックス
取扱店からのお知らせ
不動産業者様へ
掲載やサイトについて
とかち・帯広の不動産・お部屋探し決定版!
「
借りたい
」「
買いたい
」 なんでもミツカル!
帯広・十勝管内の賃貸・売買情報「すーまるnet」
suumaru-net.com
management by
とかち・帯広の不動産・お部屋探し決定版!
「
借りたい
」「
買いたい
」 なんでもミツカル!
management by
借りたい
賃貸物件を探す
買いたい
住宅や土地を探す
おまかせ物件探し
希望の物件をリクエスト
お知らせ
すーまるnetからのお知らせ
トピックス
取扱店からのお知らせ
不動産業者様へ
掲載やサイトについて
参加取扱店|一覧をみる
|借りたい|
|エリアから探す|
|地図から探す|
|学校から探す|
|新着物件一覧|
|買いたい|
|マンション|
|一戸建|
|土地・収益物件|
|新着物件一覧|
◉
マイリストをみる
◉
すーまるnetについて
◉
物件の掲載について
◉
すーまるnetへのお問合せ
◉
ご利用規約
|買いたい|
物件詳細
マイリストに追加
印刷
以平 中古住宅
720
万
円
所在地
帯広市以平町西3線10番地33
築年
2003年12月
種別/階建
戸建て/地上2階建 地下1階建
面積
建物/95.98㎡ 土地/968.00㎡
交通
十勝 バス0分「大正」 バス停徒歩125分
取扱・お問合せ
㈱エーワンホーム
0800018 帯広市西8条南13丁目2
Tel.0155-22-2009
店舗詳細
ホームページ
メールでこの物件に問合せ
間取り
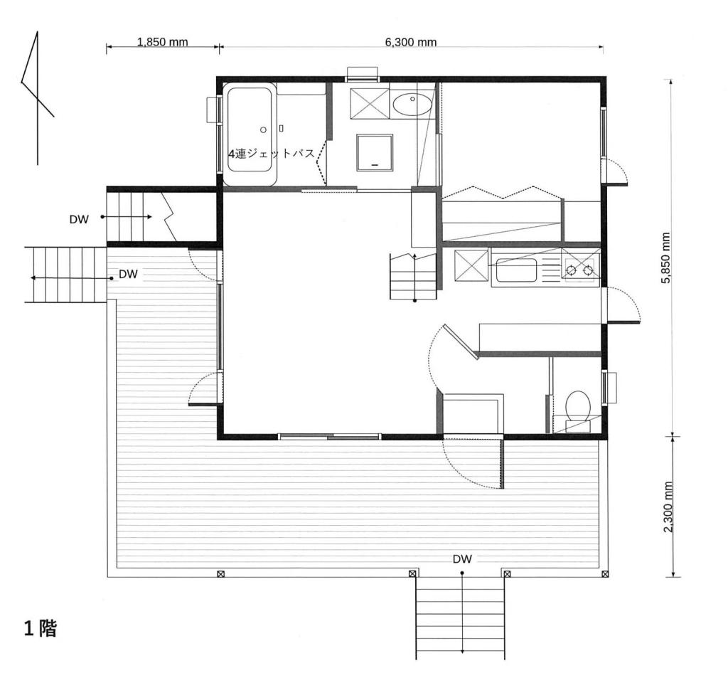
3DK(LD9.0帖/K3.0帖/洋室3.3帖/洋室10.5帖/洋室5.2帖)
構造
木造
学校区
-
駐車場
有り/0円/月額(駐車可能台数0台)
用途/地目
山林
引渡
相談
仲介手数料
330,000円
現況
空き
建ぺい/容積
-
接道状況
南幅8.00mの私道に23.35m接道
取引態様
媒介
コメント
ウッドデッキ付(24.57㎡)光ファイバー可
地下室有り(多目的室・収納スペース)
景観良好!!(日高山脈・雲海が見えることも)
備考
-
設備等
高台に立地
整形地
庭が広い(10坪以上)
日当り良好
照明器具付
フローリング
シューズボックス
シャンプードレッサー
浴室に窓
浴室1坪以上
システムキッチン
給湯(灯油)
LPガス
灯油暖房
灯油ボイラー
ブロードバンド回線(光ファイバーなどの高速インターネット)
田舎暮らし向き
水道その他
浄化槽
汲取
メールでこの物件に問合せ
management by
Tel.0155-23-2323
Fax.0155-24-9190
〒080-8688 北海道帯広市東1条南8丁目2番地
年間約
50
回の広告掲載で、ネットと新聞のダブル効果!「すーまるnet」は参加店を随時募集中です!
すーまるnetについて
物件の掲載について
すーまるnetへのお問合せ
借りたい
| エリアから
| 地図から
| 学校から
| 新着物件一覧
買いたい
| マンション
| 一戸建
| 土地・収益物件
| 新着物件一覧
おまかせ物件探し
web特集
トピックス
不動産業者様へ
掲載店一覧
すーまるnetについて
物件掲載・広告掲載について
すーまるnetへのお問合せ
ご利用規約
© Tokachi Mainichi Newspaper Inc.
マイリスト
履歴
閲覧履歴
検索履歴