借りたい
賃貸物件を探す
買いたい
住宅や土地を探す
おまかせ物件探し
希望の物件をリクエスト
お知らせ
すーまるnetからのお知らせ
トピックス
取扱店からのお知らせ
不動産業者様へ
掲載やサイトについて
とかち・帯広の不動産・お部屋探し決定版!
「
借りたい
」「
買いたい
」 なんでもミツカル!
帯広・十勝管内の賃貸・売買情報「すーまるnet」
suumaru-net.com
management by
とかち・帯広の不動産・お部屋探し決定版!
「
借りたい
」「
買いたい
」 なんでもミツカル!
management by
借りたい
賃貸物件を探す
買いたい
住宅や土地を探す
おまかせ物件探し
希望の物件をリクエスト
お知らせ
すーまるnetからのお知らせ
トピックス
取扱店からのお知らせ
不動産業者様へ
掲載やサイトについて
参加取扱店|一覧をみる
|借りたい|
|エリアから探す|
|地図から探す|
|学校から探す|
|新着物件一覧|
|買いたい|
|マンション|
|一戸建|
|土地・収益物件|
|新着物件一覧|
◉
マイリストをみる
◉
すーまるnetについて
◉
物件の掲載について
◉
すーまるnetへのお問合せ
◉
ご利用規約
|買いたい|
物件詳細
マイリストに追加
印刷
※価格改定 西16条南30丁目の中古戸建 延床150㎡越えのリノベ向け物件♪
1,350
万
円
所在地
帯広市西十六条南30丁目
築年
1994年10月
種別/階建
戸建て/地上2階建
面積
建物/150.70㎡ 土地/228.31㎡
交通
JR根室本線(新得~釧路) 帯広駅 徒歩43分
取扱・お問合せ
センチュリー21ネクストワン
0800021 北海道帯広市西十一条南13丁目3-5
Tel.0155-23-2828
店舗詳細
ホームページ
メールでこの物件に問合せ
間取り
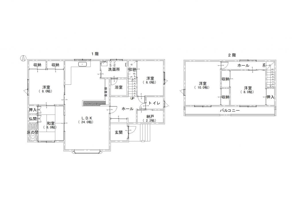
5LDK(LDK24.0帖/和室6.0帖/洋室8.0帖/洋室6.0帖/洋室10.0帖/洋室8.0帖)
構造
木造
学校区
稲田小学校 1.4km/南町中学校 1km
駐車場
有り(駐車可能台数3台)
用途/地目
第二種中高層住居専用地域/宅地
引渡
相談
仲介手数料
511,500円
現況
空き
建ぺい/容積
建ぺい率60% 容積200%
接道状況
南幅6.00mの公道に15.00m接道
取引態様
媒介
コメント
延床150㎡越えのリノベーションに最適物件です♪
南付き道路なので日当たりも良好です♪
5LDKのなのでご家族が多くても安心の間取りです!
残置物の撤去は五月に行う予定です。
物件内部写真は後日掲載予定です。
内見は問題なく行って頂けます♪
コンビニやスーパーも近く便の良い立地です♪
備考
-
設備等
-
メールでこの物件に問合せ
management by
Tel.0155-23-2323
Fax.0155-24-9190
〒080-8688 北海道帯広市東1条南8丁目2番地
年間約
50
回の広告掲載で、ネットと新聞のダブル効果!「すーまるnet」は参加店を随時募集中です!
すーまるnetについて
物件の掲載について
すーまるnetへのお問合せ
借りたい
| エリアから
| 地図から
| 学校から
| 新着物件一覧
買いたい
| マンション
| 一戸建
| 土地・収益物件
| 新着物件一覧
おまかせ物件探し
web特集
トピックス
不動産業者様へ
掲載店一覧
すーまるnetについて
物件掲載・広告掲載について
すーまるnetへのお問合せ
ご利用規約
© Tokachi Mainichi Newspaper Inc.
マイリスト
履歴
閲覧履歴
検索履歴