借りたい
賃貸物件を探す
買いたい
住宅や土地を探す
おまかせ物件探し
希望の物件をリクエスト
お知らせ
すーまるnetからのお知らせ
トピックス
取扱店からのお知らせ
不動産業者様へ
掲載やサイトについて
とかち・帯広の不動産・お部屋探し決定版!
「
借りたい
」「
買いたい
」 なんでもミツカル!
帯広・十勝管内の賃貸・売買情報「すーまるnet」
suumaru-net.com
management by
とかち・帯広の不動産・お部屋探し決定版!
「
借りたい
」「
買いたい
」 なんでもミツカル!
management by
借りたい
賃貸物件を探す
買いたい
住宅や土地を探す
おまかせ物件探し
希望の物件をリクエスト
お知らせ
すーまるnetからのお知らせ
トピックス
取扱店からのお知らせ
不動産業者様へ
掲載やサイトについて
参加取扱店|一覧をみる
|借りたい|
|エリアから探す|
|地図から探す|
|学校から探す|
|新着物件一覧|
|買いたい|
|マンション|
|一戸建|
|土地・収益物件|
|新着物件一覧|
◉
マイリストをみる
◉
すーまるnetについて
◉
物件の掲載について
◉
すーまるnetへのお問合せ
◉
ご利用規約
|買いたい|
物件詳細
マイリストに追加
印刷
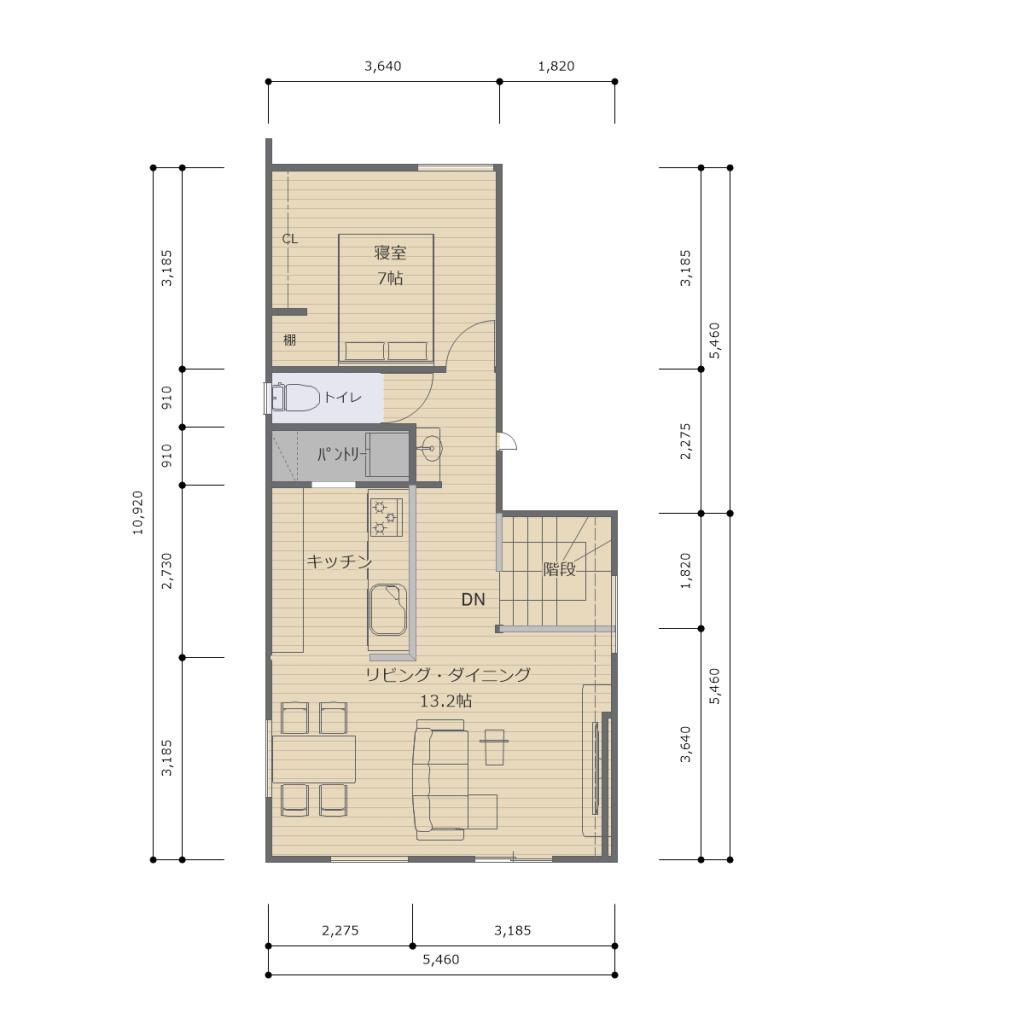
【新築】無垢と造作が心地よい『2階リビングの家』
3,480
万
円
新築
所在地
帯広市南の森西6丁目37番167(住居表示:10番1号)
築年
2025年5月
種別/階建
戸建て/地上2階建
面積
建物/96.88㎡ 土地/201.30㎡
交通
十勝バス バス0分「南の森西4丁目」 バス停徒歩7分
取扱・お問合せ
株式会社北の匠
0800013 帯広市西3条南19丁目2番地
Tel.0155666048
店舗詳細
ホームページ
メールでこの物件に問合せ
間取り
2LDK
間取り備考
1階洋間12畳は分割可
構造
木造
学校区
大空学園義務教育学校 1.6km/大空学園義務教育学校 1.6km
駐車場
有り/0円/月額(駐車可能台数2台)
用途/地目
第一種中高層住居専用地域/宅地
引渡
即時
仲介手数料
-
現況
空き
建ぺい/容積
建ぺい率60% 容積100%
接道状況
北東幅8.00mの公道に11.00m接道
取引態様
売主
コメント
〇陽当りとプライベートが守られる「心地よい、2階リビングの家」
〇モデルハウスの役割も果たしましたので、ご購入いただけます!
〇購入ご検討の方以外でも内覧は随時可能ですので、ご希望の方はお問合せ下さい!
【お問合せ先】
HP:https://kita-taku.com/news/25319/
TEL:0155-66-6048
備考
2階で操作可能なオートドアロック付き!
設備等
整形地
閑静な住宅街
土地付き提案住宅
照明器具付
二重サッシ
シューズボックス
トイレ2カ所以上
温水洗浄トイレ
シャンプードレッサー
追い炊き風呂
浴室1坪以上
コンロ3口以上
食器洗乾燥機
給湯(ガス)
都市ガス
エアコン付
24時間換気システム
エコジョーズ
モニタ付インターホン
メールでこの物件に問合せ
management by
Tel.0155-23-2323
Fax.0155-24-9190
〒080-8688 北海道帯広市東1条南8丁目2番地
年間約
50
回の広告掲載で、ネットと新聞のダブル効果!「すーまるnet」は参加店を随時募集中です!
すーまるnetについて
物件の掲載について
すーまるnetへのお問合せ
借りたい
| エリアから
| 地図から
| 学校から
| 新着物件一覧
買いたい
| マンション
| 一戸建
| 土地・収益物件
| 新着物件一覧
おまかせ物件探し
web特集
トピックス
不動産業者様へ
掲載店一覧
すーまるnetについて
物件掲載・広告掲載について
すーまるnetへのお問合せ
ご利用規約
© Tokachi Mainichi Newspaper Inc.
マイリスト
履歴
閲覧履歴
検索履歴