借りたい
賃貸物件を探す
買いたい
住宅や土地を探す
おまかせ物件探し
希望の物件をリクエスト
お知らせ
すーまるnetからのお知らせ
トピックス
取扱店からのお知らせ
不動産業者様へ
掲載やサイトについて
とかち・帯広の不動産・お部屋探し決定版!
「
借りたい
」「
買いたい
」 なんでもミツカル!
帯広・十勝管内の賃貸・売買情報「すーまるnet」
suumaru-net.com
management by
とかち・帯広の不動産・お部屋探し決定版!
「
借りたい
」「
買いたい
」 なんでもミツカル!
management by
借りたい
賃貸物件を探す
買いたい
住宅や土地を探す
おまかせ物件探し
希望の物件をリクエスト
お知らせ
すーまるnetからのお知らせ
トピックス
取扱店からのお知らせ
不動産業者様へ
掲載やサイトについて
参加取扱店|一覧をみる
|借りたい|
|エリアから探す|
|地図から探す|
|学校から探す|
|新着物件一覧|
|買いたい|
|マンション|
|一戸建|
|土地・収益物件|
|新着物件一覧|
◉
マイリストをみる
◉
すーまるnetについて
◉
物件の掲載について
◉
すーまるnetへのお問合せ
◉
ご利用規約
|買いたい|
物件詳細
マイリストに追加
印刷
【成約済み】《N.nord-エヌノード-》帯広市西9条南19丁目モデルハウス
3,680
万
円
新築
所在地
帯広市西9条南19丁目8番11
築年
2026年2月
種別/階建
戸建て/地上2階建
面積
建物/108.50㎡ 土地/169.00㎡
交通
JR根室本線(新得~釧路) 帯広駅 徒歩16分
JR根室本線(新得~釧路) 柏林台駅 徒歩40分
取扱・お問合せ
㈱ロゴスホーム
0800803 帯広市東3条南13丁目2番地1
Tel. 0155-22-4126
店舗詳細
ホームページ
メールでこの物件に問合せ
間取り
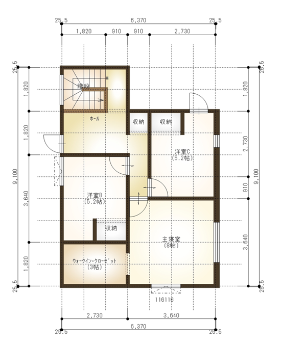
4LDK(LDK16.0帖/洋室3.7帖/洋室8.0帖/洋室5.2帖/洋室5.2帖)
構造
木造
学校区
花園小学校 0.5km/帯広第五中学校 1.7km
駐車場
有り(駐車可能台数2台)
用途/地目
第二種中高層住居専用地域/雑種地
引渡
相談
仲介手数料
-
現況
建築中
建ぺい/容積
建ぺい率60% 容積200%
接道状況
東幅20.00mの公道に12.27m接道
取引態様
売主
コメント
\2026年2月公開予定!/
緑ヶ丘の希少なエリアの土地に完成予定の4LDK!!
■太陽光発電パネル搭載
~エネルギーを効率的に活用する家計にやさしい暮らし
■電気給湯 エコキュート搭載
~効率的に給湯する省エネ性能。
■寒冷地専用冷暖房エアコン付き
~季節の変わり目にも大活躍
■2×6工法
~地震、雪、火災に負けない2×6工法を採用。
こちらの物件問合先は下記にお願いします!
<<ロゴスホーム帯広 0155-22-4126>>
備考
-
設備等
整形地
閑静な住宅街
太陽光発電システム
土地付き提案住宅
性能評価取得(設計住宅)
オール電化
二重サッシ
シューズボックス
温水洗浄トイレ
IHクッキングヒーター
コンロ3口以上
システムキッチン
給湯(電気)
電気暖房
24時間換気システム
エコキュート
モニタ付インターホン
上水道
下水道
メールでこの物件に問合せ
management by
Tel.0155-23-2323
Fax.0155-24-9190
〒080-8688 北海道帯広市東1条南8丁目2番地
年間約
50
回の広告掲載で、ネットと新聞のダブル効果!「すーまるnet」は参加店を随時募集中です!
すーまるnetについて
物件の掲載について
すーまるnetへのお問合せ
借りたい
| エリアから
| 地図から
| 学校から
| 新着物件一覧
買いたい
| マンション
| 一戸建
| 土地・収益物件
| 新着物件一覧
おまかせ物件探し
web特集
トピックス
不動産業者様へ
掲載店一覧
すーまるnetについて
物件掲載・広告掲載について
すーまるnetへのお問合せ
ご利用規約
© Tokachi Mainichi Newspaper Inc.
マイリスト
履歴
閲覧履歴
検索履歴