借りたい
賃貸物件を探す
買いたい
住宅や土地を探す
おまかせ物件探し
希望の物件をリクエスト
お知らせ
すーまるnetからのお知らせ
トピックス
取扱店からのお知らせ
不動産業者様へ
掲載やサイトについて
とかち・帯広の不動産・お部屋探し決定版!
「
借りたい
」「
買いたい
」 なんでもミツカル!
帯広・十勝管内の賃貸・売買情報「すーまるnet」
suumaru-net.com
management by
とかち・帯広の不動産・お部屋探し決定版!
「
借りたい
」「
買いたい
」 なんでもミツカル!
management by
借りたい
賃貸物件を探す
買いたい
住宅や土地を探す
おまかせ物件探し
希望の物件をリクエスト
お知らせ
すーまるnetからのお知らせ
トピックス
取扱店からのお知らせ
不動産業者様へ
掲載やサイトについて
参加取扱店|一覧をみる
|借りたい|
|エリアから探す|
|地図から探す|
|学校から探す|
|新着物件一覧|
|買いたい|
|マンション|
|一戸建|
|土地・収益物件|
|新着物件一覧|
◉
マイリストをみる
◉
すーまるnetについて
◉
物件の掲載について
◉
すーまるnetへのお問合せ
◉
ご利用規約
|買いたい|
物件詳細
マイリストに追加
印刷
大空町12丁目【大空町の事業用物件登場!】
480
万
円
所在地
帯広市大空町12丁目1番地29
築年
1980年11月
種別/階建
店舗(一棟)/地上2階建
面積
建物/175.70㎡ 土地/123.00㎡
交通
JR根室本線(新得~釧路) 帯広駅
十勝バス バス32分「大空5丁目」 バス停徒歩3分
取扱・お問合せ
株式会社ちえん
0800025 帯広市西15条南14丁目1番地11
Tel.0155-36-2477
店舗詳細
ホームページ
メールでこの物件に問合せ
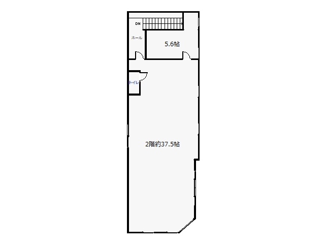
間取り
-
構造
鉄骨
学校区
大空学園義務教育学校 0.75km/大空学園義務教育学校 0.75km
駐車場
無し/0円/月額
用途/地目
近隣商業地域/宅地
引渡
相談
仲介手数料
330,000円
現況
空き
建ぺい/容積
建ぺい率80% 容積200%
接道状況
北幅12.00mの公道に6.00m接道
東幅12.00mの公道に16.00m接道
南幅8.00mの公道に6.00m接道
取引態様
専任
コメント
※大空町の事業用物件登場!
※三方角地!大空公園南側の立地です♪
※大空町でご商売始めてみませんか?
※お気軽にお問い合わせください!
備考
※準防火地域 ※駐車場付置義務条例
※角地緩和適用のため建蔽率は10%加算されます。
360度パノラマ写真→https://r65503670.theta360.biz/t/845516aa-894e-11f0-b181-0a7fdda087bb-1
設備等
-
メールでこの物件に問合せ
management by
Tel.0155-23-2323
Fax.0155-24-9190
〒080-8688 北海道帯広市東1条南8丁目2番地
年間約
50
回の広告掲載で、ネットと新聞のダブル効果!「すーまるnet」は参加店を随時募集中です!
すーまるnetについて
物件の掲載について
すーまるnetへのお問合せ
借りたい
| エリアから
| 地図から
| 学校から
| 新着物件一覧
買いたい
| マンション
| 一戸建
| 土地・収益物件
| 新着物件一覧
おまかせ物件探し
web特集
トピックス
不動産業者様へ
掲載店一覧
すーまるnetについて
物件掲載・広告掲載について
すーまるnetへのお問合せ
ご利用規約
© Tokachi Mainichi Newspaper Inc.
マイリスト
履歴
閲覧履歴
検索履歴