借りたい
賃貸物件を探す
買いたい
住宅や土地を探す
おまかせ物件探し
希望の物件をリクエスト
お知らせ
すーまるnetからのお知らせ
トピックス
取扱店からのお知らせ
不動産業者様へ
掲載やサイトについて
とかち・帯広の不動産・お部屋探し決定版!
「
借りたい
」「
買いたい
」 なんでもミツカル!
帯広・十勝管内の賃貸・売買情報「すーまるnet」
suumaru-net.com
management by
とかち・帯広の不動産・お部屋探し決定版!
「
借りたい
」「
買いたい
」 なんでもミツカル!
management by
借りたい
賃貸物件を探す
買いたい
住宅や土地を探す
おまかせ物件探し
希望の物件をリクエスト
お知らせ
すーまるnetからのお知らせ
トピックス
取扱店からのお知らせ
不動産業者様へ
掲載やサイトについて
参加取扱店|一覧をみる
|借りたい|
|エリアから探す|
|地図から探す|
|学校から探す|
|新着物件一覧|
|買いたい|
|マンション|
|一戸建|
|土地・収益物件|
|新着物件一覧|
◉
マイリストをみる
◉
すーまるnetについて
◉
物件の掲載について
◉
すーまるnetへのお問合せ
◉
ご利用規約
|買いたい|
物件詳細
マイリストに追加
印刷
西12条南31丁目【広大な敷地!約227.94坪!】
3,000
万
円
新着
所在地
帯広市西12条南31丁目4番地25
築年
1986年9月
種別/階建
戸建て/地上2階建 地下1階建
面積
建物/151.47㎡ 土地/753.55㎡
交通
JR根室本線(新得~釧路) 帯広駅 徒歩35分
十勝バス 「西12条31丁目」 バス停徒歩4分
取扱・お問合せ
株式会社ちえん
0800025 帯広市西15条南14丁目1番地11
Tel.0155-36-2477
店舗詳細
ホームページ
メールでこの物件に問合せ
間取り
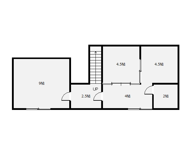
5LDK(LDK15.0帖/LDK9.0帖/和室7.5帖/洋室7.5帖/洋室8.7帖/洋室4.5帖/洋室9.0帖)
構造
木造
学校区
花園小学校 1.8km/帯広第四中学校 1.5km
駐車場
有り/0円/月額
用途/地目
第二種中高層住居専用地域/宅地
引渡
相談
仲介手数料
1,056,000円
現況
空き
建ぺい/容積
建ぺい率60% 容積200%
接道状況
南幅12.00mの公道に20.73m接道
東幅12.00mの公道に31.69m接道
取引態様
専任
コメント
帯広市西12条南31丁目 ひまわり温泉近くの中古住宅です。
弥生通と西12条通にほど近く、バス停も徒歩4分 市内近郊へのアクセスしやすエリアです。
広大な南東角地の約227坪・建物約45坪の築後39年を経過した住宅ですが、過去に浴室・キッチンのリフォーム済み。既存建物を生かして自分好みにリフォームはいかがでしょうか?
12m幅の道路で間口約20m奥行約33mでゆったりとしていて、駐車スペースも余裕で確保できます。
備考
-
設備等
角地
閑静な住宅街
物置
庭が広い(10坪以上)
日当り良好
トイレ2カ所以上
上水道
下水道
メールでこの物件に問合せ
management by
Tel.0155-23-2323
Fax.0155-24-9190
〒080-8688 北海道帯広市東1条南8丁目2番地
年間約
50
回の広告掲載で、ネットと新聞のダブル効果!「すーまるnet」は参加店を随時募集中です!
すーまるnetについて
物件の掲載について
すーまるnetへのお問合せ
借りたい
| エリアから
| 地図から
| 学校から
| 新着物件一覧
買いたい
| マンション
| 一戸建
| 土地・収益物件
| 新着物件一覧
おまかせ物件探し
web特集
トピックス
不動産業者様へ
掲載店一覧
すーまるnetについて
物件掲載・広告掲載について
すーまるnetへのお問合せ
ご利用規約
© Tokachi Mainichi Newspaper Inc.
マイリスト
履歴
閲覧履歴
検索履歴