借りたい
賃貸物件を探す
買いたい
住宅や土地を探す
おまかせ物件探し
希望の物件をリクエスト
お知らせ
すーまるnetからのお知らせ
トピックス
取扱店からのお知らせ
不動産業者様へ
掲載やサイトについて
とかち・帯広の不動産・お部屋探し決定版!
「
借りたい
」「
買いたい
」 なんでもミツカル!
帯広・十勝管内の賃貸・売買情報「すーまるnet」
suumaru-net.com
management by
とかち・帯広の不動産・お部屋探し決定版!
「
借りたい
」「
買いたい
」 なんでもミツカル!
management by
借りたい
賃貸物件を探す
買いたい
住宅や土地を探す
おまかせ物件探し
希望の物件をリクエスト
お知らせ
すーまるnetからのお知らせ
トピックス
取扱店からのお知らせ
不動産業者様へ
掲載やサイトについて
参加取扱店|一覧をみる
|借りたい|
|エリアから探す|
|地図から探す|
|学校から探す|
|新着物件一覧|
|買いたい|
|マンション|
|一戸建|
|土地・収益物件|
|新着物件一覧|
◉
マイリストをみる
◉
すーまるnetについて
◉
物件の掲載について
◉
すーまるnetへのお問合せ
◉
ご利用規約
|買いたい|
物件詳細
マイリストに追加
印刷
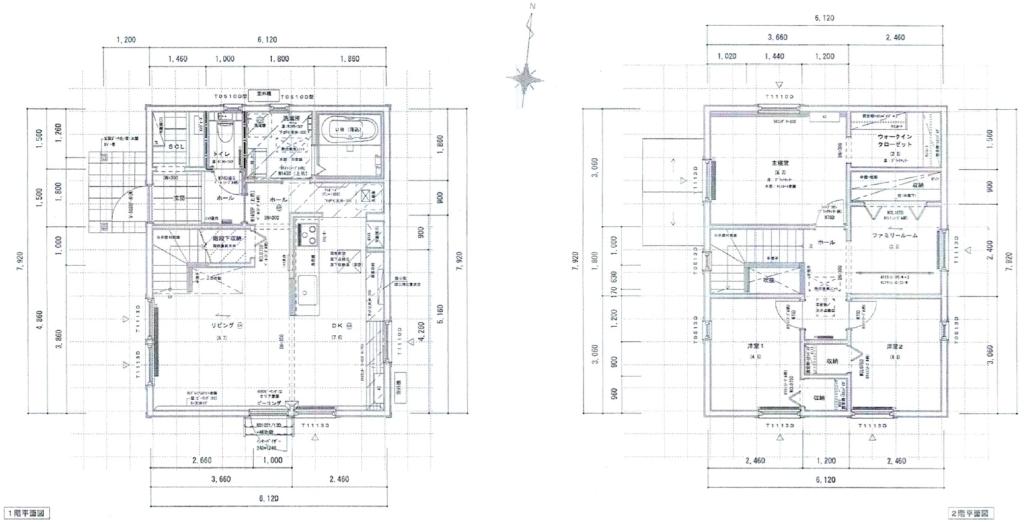
西16南6戸建
3,800
万
円
新着
所在地
帯広市西十六条南6丁目3番7
築年
2022年10月
種別/階建
戸建て/地上2階建
面積
建物/95.61㎡ 土地/170.13㎡
交通
JR根室本線(新得~釧路) 帯広駅 徒歩30分
拓殖バス バス0分「常盤通6丁目」 バス停徒歩1分
取扱・お問合せ
株式会社ESTATESYSTEM
0800015 帯広市西5条南25丁目6番地1
Tel.0155-66-7166
店舗詳細
ホームページ
メールでこの物件に問合せ
間取り
3SLDK(DK7.6帖/L8.7帖/洋室6.7帖/洋室4.5帖/洋室4.5帖/S3.5帖)
構造
木造
学校区
緑丘小学校 1km/帯広第五中学校 1km
駐車場
有り/0円/月額(駐車可能台数2台)※カーポート2台
用途/地目
第二種中高層住居専用地域/宅地
引渡
相談
仲介手数料
1,320,000円
現況
入居中
建ぺい/容積
建ぺい率60% 容積200%
接道状況
西幅10.90mの公道に11.10m接道
取引態様
専属
コメント
スウェーデンハウス造の築4年戸建てです。
備考
-
設備等
閑静な住宅街
物置
日当り良好
照明器具付
フローリング
3面採光
ウォークインクローゼット
シューズインクローゼット
シューズボックス
全室収納あり
温水洗浄トイレ
シャンプードレッサー
追い炊き風呂
浴室1坪以上
IHクッキングヒーター
コンロ3口以上
システムキッチン
食器洗乾燥機
給湯(灯油)
エアコン付
灯油暖房
24時間換気システム
灯油ボイラー
モニタ付インターホン
メールでこの物件に問合せ
management by
Tel.0155-23-2323
Fax.0155-24-9190
〒080-8688 北海道帯広市東1条南8丁目2番地
年間約
50
回の広告掲載で、ネットと新聞のダブル効果!「すーまるnet」は参加店を随時募集中です!
すーまるnetについて
物件の掲載について
すーまるnetへのお問合せ
借りたい
| エリアから
| 地図から
| 学校から
| 新着物件一覧
買いたい
| マンション
| 一戸建
| 土地・収益物件
| 新着物件一覧
おまかせ物件探し
web特集
トピックス
不動産業者様へ
掲載店一覧
すーまるnetについて
物件掲載・広告掲載について
すーまるnetへのお問合せ
ご利用規約
© Tokachi Mainichi Newspaper Inc.
マイリスト
履歴
閲覧履歴
検索履歴