借りたい
賃貸物件を探す
買いたい
住宅や土地を探す
おまかせ物件探し
希望の物件をリクエスト
お知らせ
すーまるnetからのお知らせ
トピックス
取扱店からのお知らせ
不動産業者様へ
掲載やサイトについて
とかち・帯広の不動産・お部屋探し決定版!
「
借りたい
」「
買いたい
」 なんでもミツカル!
帯広・十勝管内の賃貸・売買情報「すーまるnet」
suumaru-net.com
management by
とかち・帯広の不動産・お部屋探し決定版!
「
借りたい
」「
買いたい
」 なんでもミツカル!
management by
借りたい
賃貸物件を探す
買いたい
住宅や土地を探す
おまかせ物件探し
希望の物件をリクエスト
お知らせ
すーまるnetからのお知らせ
トピックス
取扱店からのお知らせ
不動産業者様へ
掲載やサイトについて
参加取扱店|一覧をみる
|借りたい|
|エリアから探す|
|地図から探す|
|学校から探す|
|新着物件一覧|
|買いたい|
|マンション|
|一戸建|
|土地・収益物件|
|新着物件一覧|
◉
マイリストをみる
◉
すーまるnetについて
◉
物件の掲載について
◉
すーまるnetへのお問合せ
◉
ご利用規約
|買いたい|
物件詳細
マイリストに追加
印刷
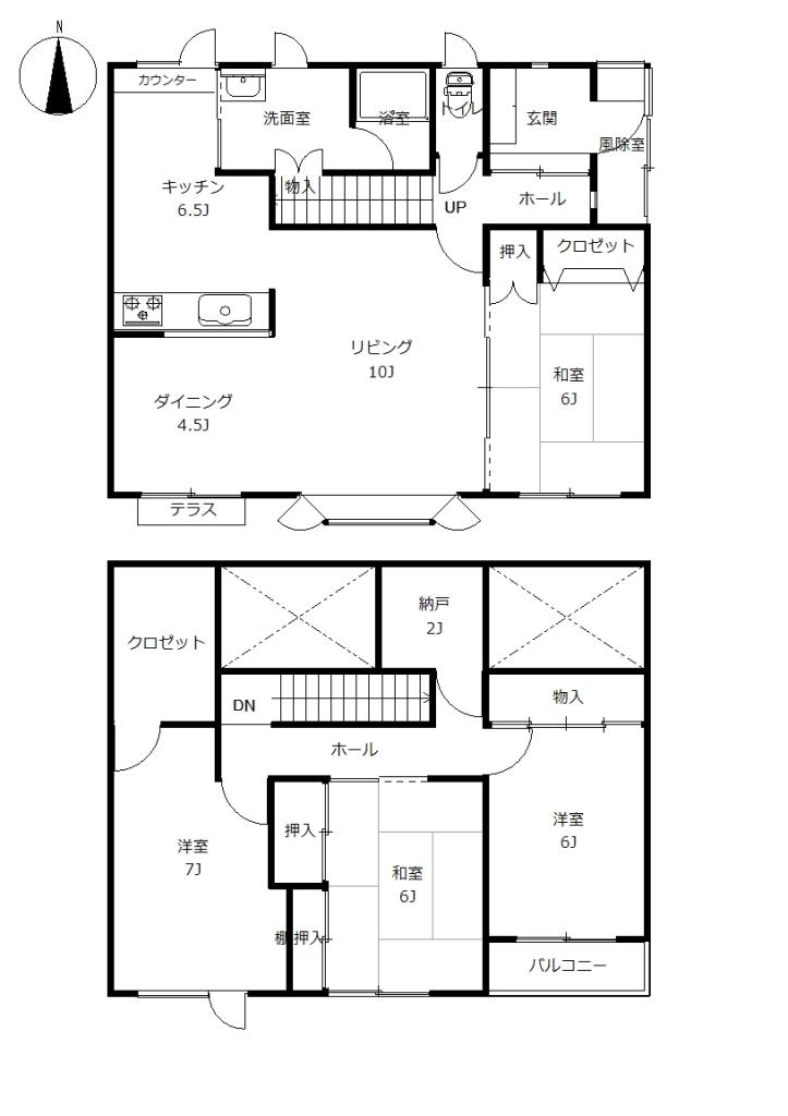
【全室南向き】西22条南4丁目 中古住宅【小中学校まで徒歩9分】
1,380
万
円
新着
所在地
帯広市西22条南4丁目24番地18
築年
1989年3月
種別/階建
戸建て/地上2階建
面積
建物/123.57㎡ 土地/238.39㎡
交通
十勝バス バス0分「中島通4丁目」 バス停徒歩4分
取扱・お問合せ
(株)フォノ
0800802 帯広市東2条南7丁目17番地7
Tel.0155-67-8102
店舗詳細
ホームページ
メールでこの物件に問合せ
間取り
4SLDK(LDK21.0帖/和室6.0帖/洋室7.0帖/洋室6.0帖/和室6.0帖/S2.0帖)
構造
木造
学校区
森の里小学校 0.6km/緑園中学校 0.6km
駐車場
有り/0円/月額(駐車可能台数0台)※青空駐車 縦列2台以上
用途/地目
第一種低層住居専用地域/宅地
引渡
相談
仲介手数料
521,400円
現況
入居中
建ぺい/容積
建ぺい率40% 容積60%
接道状況
北幅8.00mの公道に12.88m接道
取引態様
専任
コメント
マイホームをお考えの方にとって、手の届きやすい魅力的な住宅のご紹介です♪
*全室南向きの設計なので、どのお部屋にいても心地よく過ごせる明るい住空間
*間取りは4LDKと部屋数が充実しており、ご家族それぞれのプライベート空間もしっかり確保
*小学校・中学校までは徒歩約9分と、お子さまの通学にも安心の距離
*新緑通りや中島通へのアクセスが良好で、市内各方面への移動もスムーズ
*スーパーやドラッグストアへは車で約3分と、日々のお買い物にも困りません
*敷地内には青空駐車スペースを確保しており、縦列で2台以上の駐車が可能
子育て世帯はもちろん、ゆとりある住まいを求める方にもおすすめしたい物件です!
是非、お問い合わせください。
備考
※売主入居中につき、内覧は要予約
※令和8年6月中旬以降引渡し可
設備等
整形地
閑静な住宅街
物置
玄関フード
日当り良好
全室収納あり
給湯(灯油)
都市ガス
エアコン付
灯油暖房
上水道
下水道
メールでこの物件に問合せ
management by
Tel.0155-23-2323
Fax.0155-24-9190
〒080-8688 北海道帯広市東1条南8丁目2番地
年間約
50
回の広告掲載で、ネットと新聞のダブル効果!「すーまるnet」は参加店を随時募集中です!
すーまるnetについて
物件の掲載について
すーまるnetへのお問合せ
借りたい
| エリアから
| 地図から
| 学校から
| 新着物件一覧
買いたい
| マンション
| 一戸建
| 土地・収益物件
| 新着物件一覧
おまかせ物件探し
web特集
トピックス
不動産業者様へ
掲載店一覧
すーまるnetについて
物件掲載・広告掲載について
すーまるnetへのお問合せ
ご利用規約
© Tokachi Mainichi Newspaper Inc.
マイリスト
履歴
閲覧履歴
検索履歴