借りたい
賃貸物件を探す
買いたい
住宅や土地を探す
おまかせ物件探し
希望の物件をリクエスト
お知らせ
すーまるnetからのお知らせ
トピックス
取扱店からのお知らせ
不動産業者様へ
掲載やサイトについて
とかち・帯広の不動産・お部屋探し決定版!
「
借りたい
」「
買いたい
」 なんでもミツカル!
帯広・十勝管内の賃貸・売買情報「すーまるnet」
suumaru-net.com
management by
とかち・帯広の不動産・お部屋探し決定版!
「
借りたい
」「
買いたい
」 なんでもミツカル!
management by
借りたい
賃貸物件を探す
買いたい
住宅や土地を探す
おまかせ物件探し
希望の物件をリクエスト
お知らせ
すーまるnetからのお知らせ
トピックス
取扱店からのお知らせ
不動産業者様へ
掲載やサイトについて
参加取扱店|一覧をみる
|借りたい|
|エリアから探す|
|地図から探す|
|学校から探す|
|新着物件一覧|
|買いたい|
|マンション|
|一戸建|
|土地・収益物件|
|新着物件一覧|
◉
マイリストをみる
◉
すーまるnetについて
◉
物件の掲載について
◉
すーまるnetへのお問合せ
◉
ご利用規約
|買いたい|
物件詳細
マイリストに追加
印刷
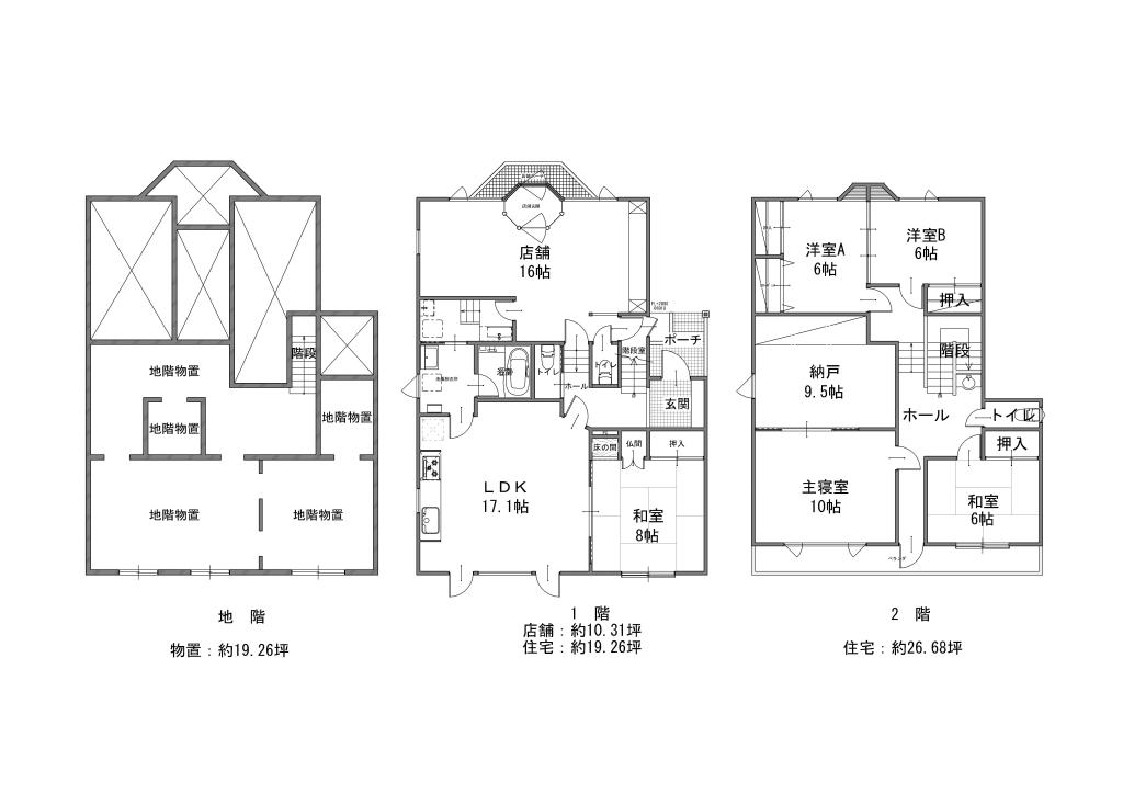
値下げ!店舗併用中古住宅 帯広市西9条南2丁目
900
万
円
新着
所在地
帯広市西9条南2丁目12-5
築年
1999年9月
種別/階建
戸建て/地上2階建 地下1階建
面積
土地/198.75㎡
交通
JR根室本線(新得~釧路) 帯広駅 徒歩20分
取扱・お問合せ
株式会社北王
0800037 北海道帯広市西7条北1丁目11番地
Tel.0155-28-3100
店舗詳細
ホームページ
メールでこの物件に問合せ
間取り
-
構造
木造
学校区
北栄小学校 0.4km/帯広第一中学校 1.8km
駐車場
有り/0円/月額(駐車可能台数3台)
用途/地目
第一種住居地域/雑種地
引渡
相談
仲介手数料
363,000円
現況
空き
建ぺい/容積
建ぺい率60% 容積200%
接道状況
北幅8.00mの公道に10.91m接道
取引態様
媒介
コメント
元理髪店の店舗併用住宅です。
店舗:約10.31坪
住宅:約45.94坪
地下:約18.88坪
北栄小学校まで400m・徒歩5分!
フクハラ西12条店まで500m・徒歩7分
現状でのお引渡しです。
※居住するにはリフォームが必要です。
備考
-
設備等
都市ガス
上水道
下水道
メールでこの物件に問合せ
management by
Tel.0155-23-2323
Fax.0155-24-9190
〒080-8688 北海道帯広市東1条南8丁目2番地
年間約
50
回の広告掲載で、ネットと新聞のダブル効果!「すーまるnet」は参加店を随時募集中です!
すーまるnetについて
物件の掲載について
すーまるnetへのお問合せ
借りたい
| エリアから
| 地図から
| 学校から
| 新着物件一覧
買いたい
| マンション
| 一戸建
| 土地・収益物件
| 新着物件一覧
おまかせ物件探し
web特集
トピックス
不動産業者様へ
掲載店一覧
すーまるnetについて
物件掲載・広告掲載について
すーまるnetへのお問合せ
ご利用規約
© Tokachi Mainichi Newspaper Inc.
マイリスト
履歴
閲覧履歴
検索履歴